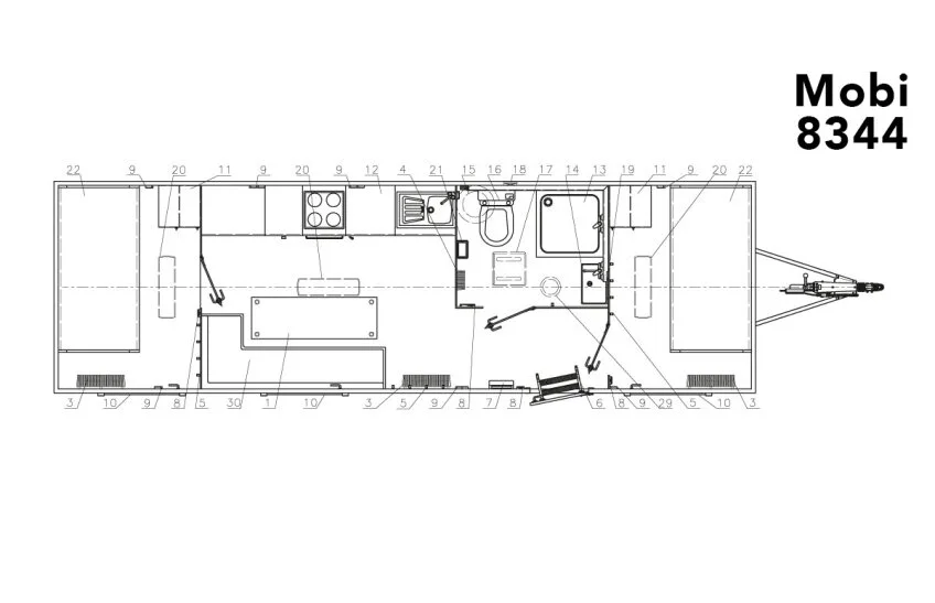
Grundausrüstung:
Arbeitstisch 1500 x 800 mm
3 Stück Elektroheizung 2000 W
Elektroheizung 500 W
13 Stück Kleiderhaken
Verzinkte Treppe
Sicherungskasten 230 V
4 Stück Lichtschalter
18 Stück Steckdosen 220 V
3 Stück Fenster mit Aussendeckel, 900 x 900 mm
2 Stück Blech Doppelschrank, 500 x 500 x1750 mm
Küchenzeile mit Ausstattung
Duschbad mit Vorhang
Kunststoffwaschbecken
Boiler 30 l
Wasserkloset, Ablaufsmühle
Dachventilation 400 x 400 mm
Elektrolüftung
Spiegel 600 x 400 mm
4 Stück Neonlicht 220 V / 36 W
Halter für Toilettenpapier
2 Stück Etagenbett
Licht WC
Diverses Zubehör vorhanden.
Gerne beraten wir Sie über die verschiedenen Ausstattungsmöglichkeiten.


